Home > Property for Sale in Kochi > Property for Sale in Vazhakkala > 3 BHK Apartment for Sale in Asset Eminence, Vazhakkala, Kochi
Asset Eminence, Vazhakkala, Kochi
3BHK

Configurations

Jul 2025

Possession By

1397 Sq. Ft

(Super Builtup Area)

3 BHK Apartment for Sale in Asset Eminence, Vazhakkala, Kochi For Sale Apartment Property ID : 1000- 62572

Society: Asset Eminence Vazhakkala Kochi, Kerala, India

Asset Homes Pvt. Ltd Asset Homes Pvt. Ltd ( Builder )

Sale Price: 73.59 L

RERA ID K-RERA/PRJ/ERN/020/2023

Property Details

  • Property Type : Apartment
  • Property Status : For Sale
  • Sale Price : 73.59 L
  • Availability : Under Construction
  • Possession By : Jul 2025
  • Ownership : Freehold
  • BuiltUp Area : 1397sq.ft.
  • Bedrooms : 3
  • Bathrooms : 3
  • Balconies : 2
  • Reserved Parking : 4 wheeler

Amenities

  • Security
  • CCTV Camera
  • Maintenance Staff
  • Visitor Parking
  • Kids Play Area
  • Power Backup
  • Large Open Space
  • Internet Connectivity
  • 24by7 Water
  • Waste Disposal
  • RainWater Harvesting
  • Gated Society
  • Laundry Services

Property Brief

 

Asset Eminence Residential project in Kochi offering Apartments for Sale in Vazhakala. The property offers 1,2&3BHK Apartments meticulously planned that guarantee a hassle-free lifestyle. As per the area plan the size range 677.00 sq.ft. - 1397.00 sq.ft. Possession date is July 2025. Asset Eminence offers prices suitable for both luxurious and affordable Apartments in Kochi. Asset Eminence is located Vazhakala. This is considered as best Apartments for Sale in Kochi and best Apartments for Sale in Vazhakala.

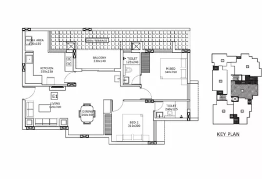
The floor plan of Asset Eminence enables the best utilization of the space with spacious balconies, standard kitchen size and high-quality fixtures. Location advantage of Asset Eminence is its proximity to Reputed Schools and Colleges. Unmatched connectivity from all the important landmarks and places. Easy access to everyday utility such as hospitals, schools, supermarts, parks, recreational centers etc.

In terms of facilities, Asset Eminence is loaded with multiple offerings such as Gymnasium, Power Backup. For families with kids, there is Children Play Area. It is a Gated Community. There is 24x7 Security. It is one of the most admired properties in India.

Map Location

  • Address : Vazhakkala,
  • City : Kochi
  • State : Kerala
  • Country : India

About Asset Homes Pvt. Ltd Builder

Asset Homes is among the leading developers in Kerala, with an operational track record of more than a decade. The strong brand name has aided the group in executing projects across Nine cities in Kerala (Kollam, Ernakulam, Thrissur, Thiruvananthapuram, Kozhikode, Kannur, Pathanamthitta, Alappuzha, and Kottayam). Its location advantage, supported by better connectivity and the presence of adequate social infrastructure, continues to strengthen its market position.

What's Nearby?

  Hospital :

  ATM :

  School :

  Bank :

  Restaurant :

  Spa Beauty Salon :

Similar Listings

3 BHK Apartment for Sale in Marina One, Marine Drive, Kochi
  • Featured
  • For Sale

3 BHK Apartment for Sale in Marina One, Marine Drive, Kochi

Kochi, Kerala, India

  • 3 Bedroom(s)
  • 2296 sq.ft.
  • Apartment
3 BHK Apartment for Sale in SMS Bodhi, Edappally, Kochi
  • Featured
  • For Sale

3 BHK Apartment for Sale in SMS Bodhi, Edappally, Kochi

Kochi, Kerala, India

  • 3 Bedroom(s)
  • 1120 sq.ft.
  • Apartment
3 BHK Apartment for Sale in Skyline Matrix, Kakkanad, Kochi
  • Featured
  • For Sale

3 BHK Apartment for Sale in Skyline Matrix, Kakkanad, Kochi

Kochi, Kerala, India

  • 3 Bedroom(s)
  • 1581 sq.ft.
  • Apartment
Asset Homes Pvt. Ltd
  • Asset Homes Pvt. Ltd
  • Builder
I agree to Truehomes24.com Terms of use